Описание
Характеристики
Отзывы
Описание
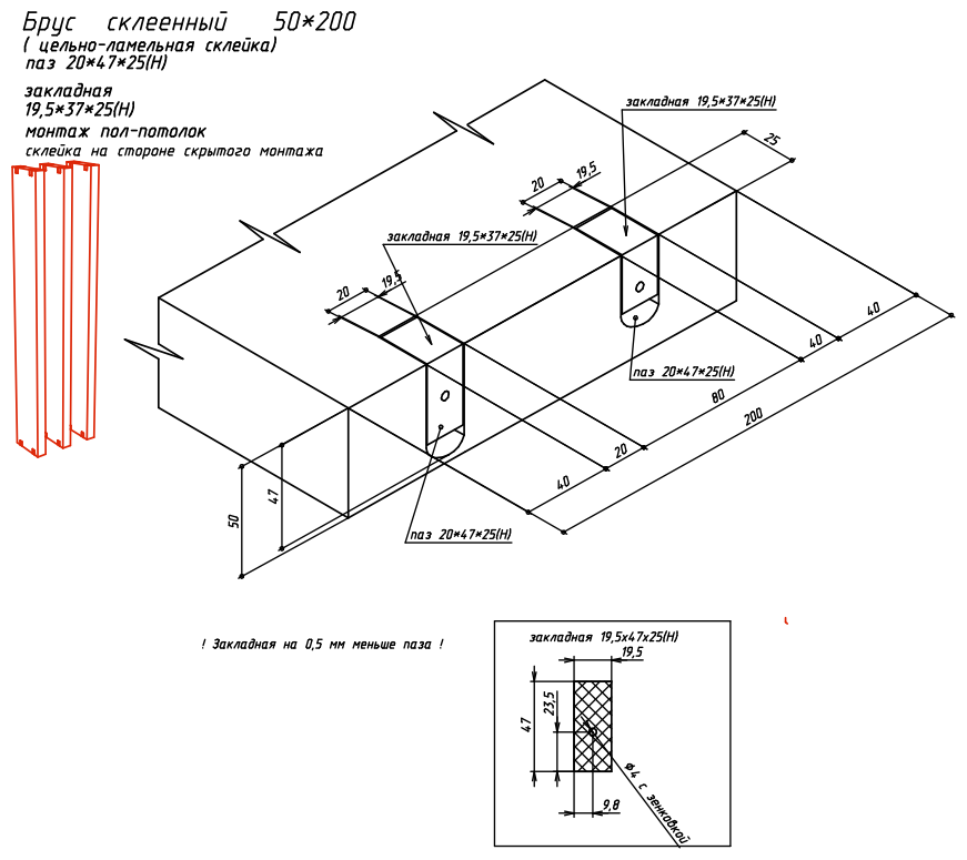
Брус цельноламельной склейки из Ясеня 40х100х3000мм для реечной перегородки, под лаком, с механизмом скрытого монтажа пол/потолок. Доступны любые породы дерева, размеры и цвета.
Цена за 1 рейку/брусок. Подсветка комплектуется отдельно.
Осуществляем замер, доставку и монтаж по РФ. Изделия готовы к установке.
Используется столярный пиломатериал камерной сушки 6-8% влажности , сорт A. Данный материал не подвержен деформации, не имеет смоляных карманов и трещин.
Со всеми этапами производства:
-распил/склеивание
-механизм скрытого монтажа
-шпатлевание
-нанесение грунта
-шлифовка
-обеспыливание
-нанесение лака с колером 2сл
Год гарантии и сервисного обслуживания.
Характеристики
Бренд
Brus Decor
Страна производства
Россия
Бренд_85
Brus Decor
Гарантия
1 год
Страна-изготовитель
Россия
Количество в упаковке, шт
1
Срок годности
10 лет
срок доставки
30
Производитель
Brus Decor
Материал
дерево
Назначение
для дома
Отзывы
Отзывов еще никто не оставлял
